Casa semindipendente in vendita

San Francesco Al Campo, Via Costa
€ 199.000
8 locali 8 locali
209 Mq 209 Mq
2 bagni 2 bagni

Casa semindipendente in vendita

San Francesco Al Campo, Via Costa

Descrizione annuncio

In prossimità della zona semicentrale, vicino al Ristorante 'Il Gallo', comodo anche alla zona di Leinì, casa semindipendente libera su due lati con terreno.

L'immobile è stato ristrutturato a fine anni '80 e si presenta in buone condizioni interne.

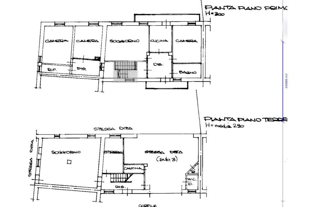
Il piano abitativo al primo piano si sviluppa su un unico livello ed è composto da ingresso, cucina abitabile, soggiorno con camino a legna, bagno con vasca, tre camere da letto e ripostiglio ampio con finestra. Per quest'ultimo vano è possibile fare un cambio destinazione d'uso al fine di adibirlo a servizio igienico.

Il piano terra è composto da un vano con volte con mattone a vista adibito a soggiorno/taverna, dal disimpegno, dal locale stireria, dalla cantina, dal wc e dal box auto doppio di 46 mq.

L'immobile ha un terreno di 751 mq e sul retro c'è un secondo ingresso indipendente, accessibile tramite strada sterrata.

La rete fognaria è allacciata e il riscaldamento è autonomo a gpl. I serramenti esterni sono in ferro al piano terra, mentre al primo piano sono in alluminio con camera doppia.

Di recente, lungo via Costa è stato portato il metano e si può fare l'allacciamento.

Considerate la disposizione interna e la metratura, la casa può essere adibita anche a bifamiliare.

La soluzione è ottima per tutte le famiglie che cercano un immobile ampio, luminoso, con spazi interni generosi e soprattutto situato in zona tranquilla.

Mostra tutto

Nelle vicinanze

Trasporto pubblico Trasporto pubblico
Malanghero (bv. San Maurizio)
Malanghero (bv. San Maurizio)
2,0 Km
San Francesco al Campo (v. Roma)
San Francesco al Campo (v. Roma)
2,1 Km
Farmacia Farmacia
Farmacia
2,8 Km
Supermercati Supermercati
Crai EXTRA
2,8 Km
Negozi Negozi
Negozi
2,4 Km
Bar Bar
50 Special
2,4 Km
Ristoranti Ristoranti
Londrina
1,8 Km
Mostra tutto

Caratteristiche

Rif.:
61165632
Piano:
1 di 1 (Piano su più livelli)
Box:
1
Posti auto:
1
Balconi:
2
Camere da letto:
4
Mostra tutto
Prezzo Prezzo
€ 199.000
Rata mutuo Rata mutuo
€ 930 / mese
Spese annue Spese annue
€ 0
Proponi il tuo prezzoProponi il tuo prezzo

Classe Energetica

F
F
F
F
F
F
F
F
F
EP globale non rinnovabile:
0.00 kW h/m² anno
EP globale rinnovabile:
0.00 kW h/m² anno
Anno di costruzione:
1967
Riscaldamento:
Autonomo
Tipo impianto:
A radiatori
Tipo alimentazione:
GPL

Ti interessa visionare l'immobile?

Fissa un appuntamento  Fissa un appuntamento

Richiedi informazioni

Clicca su Leggi per aprire l'informativa
* Questi campi sono obbligatori

Calcola il tuo mutuo

Semplice e senza impegno
Anticipo

( % )
Mutuo

( % )

pochi semplici passi

inserisci i tuoi dati
Questionario completato
Grazie per aver richiesto un appuntamento senza impegno con un nostro Consulente del Credito e Assicurativo.

Hai inserito correttamente tutti i dati necessari e a breve riceverai una e-mail con un link da convalidare per inviare i tuoi dati.
Affiliato
Immobiliare San Maurizio Sas
Via Vittorio Emanuele, 42/A 10077 San Maurizio Canavese (TO)

Il nostro staff


  • Ersilio Fascetta
    Affiliato

  • Laura Antonelli
    Responsabile

  • Rossella Valido
    Responsabile

  • Simona Gigliotti
    Collaboratrice

  • Annalisa Aseglio Gianinet
    Coordinatrice

  • Nicolo Antonino Iacono
    Collaboratore

  • Giada De Martino
    Collaboratrice
Via Vittorio Emanuele, 42/A 10077 San Maurizio Canavese (TO)
Zona: San Maurizio Canavese - San Francesco al Campo
Mostra su mappa
Orari: Da Lunedì a Venerdì 09:00 / 12:30 e 14:30 / 20:00 - Sabato 09:00 / 12:30 e 14:30 / 19:30
Affiliato
Immobiliare San Maurizio Sas
Via Vittorio Emanuele, 42/A 10077 San Maurizio Canavese (TO)

2026 Tecnocasa Franchising S.p.A. - P. IVA 08365160152 - Via Monte Bianco 60/A 20089 Rozzano (MI). Ogni agenzia ha un proprio titolare ed è autonoma. Privacy policy | Policy utilizzo | Cookie policy