Porzione di bifamiliare in vendita

San Francesco Al Campo, Via Bruna
€ 265.000
Prezzo aggiornato
5 locali 5 locali
144 Mq 144 Mq
2 bagni 2 bagni

Porzione di bifamiliare in vendita

San Francesco Al Campo, Via Bruna

Descrizione annuncio

In prossimità della zona centrale, vicino alle scuole, alla Chiesa, al Comune e in prossimità del Velodromo e del Centro Commerciale 'Le Borgate', porzione di bifamiliare di recente costruzione con giardino privato.

L'immobile si presenta in ottime condizioni interne ed è situato all'interno di un complesso residenziale di ville costruite nel 2006/2007.

L'ingresso indipendente è tramite cancello pedonale e carraio e conduce all'area esterna cortilizia.

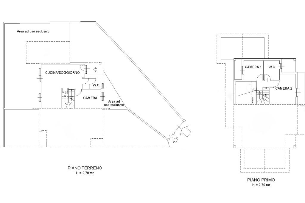
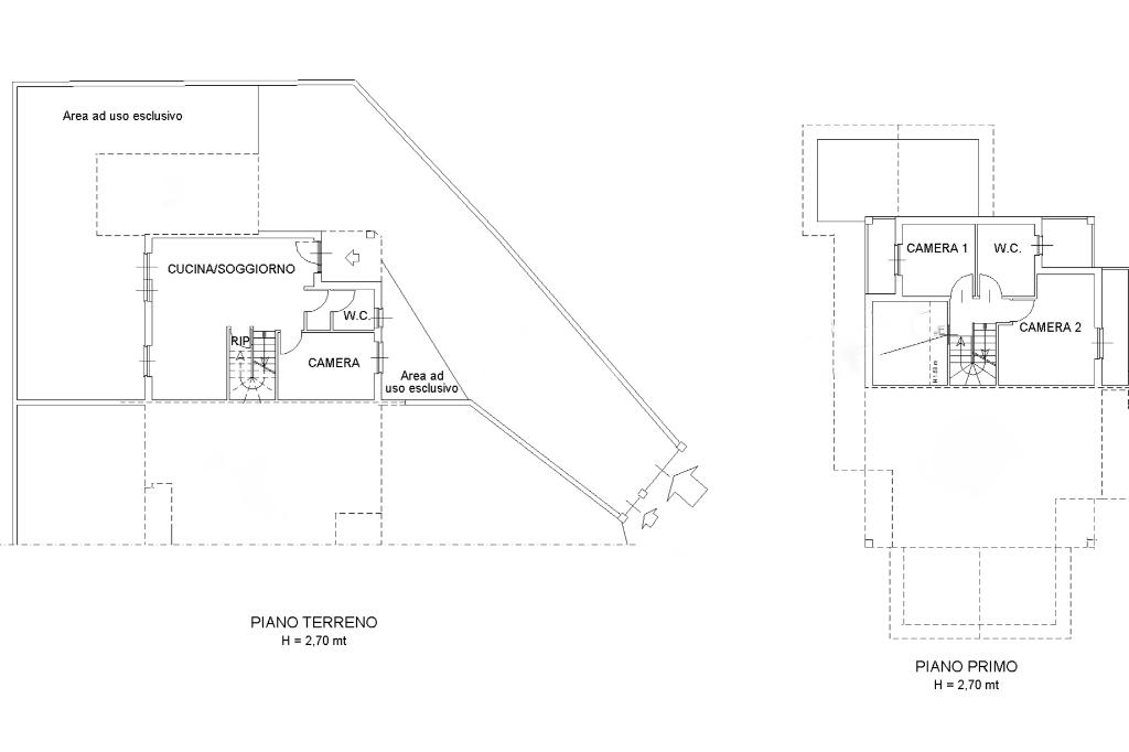
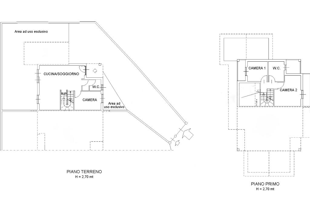
Al piano terra, il portoncino blindato conduce al soggiorno con stufa a pellet. La cucina è abitabile e ha l'affaccio sul giardino privato dotato di punto acqua e di punto luce. Sempre al piano terra, è presente una cameretta/studio e un bagno di servizio con doccia.

Tramite scala interna, si accede al primo piano composto dal disimpegno, dalla camera matrimoniale, dalla cameretta e dal bagno con vasca/doccia multifunzione. Sempre al piano, una comoda lavanderia/stireria. Tutte le camere affacciano sui balconi.

Le porte interne sono in legno, la pavimentazione è in gress porcellanato ed è presente la caldaia a condensazione a metano.

Sono stati installati da poco le pompe di calore e i serramenti in alluminio dotati di camera doppia e apertura vasistas, correlati da gelosie.

Il piano sottotetto è attualmente grezzo, ma recuperabile ai fini abitativi con predisposizione di finestre.

La casa è ideale per tutte le famiglie che cercano una casa confortevole, luminosa e comoda ai primi servizi che il paese offre.

Completa la proprietà il box auto singolo piastrellato adibito attualmente anche a magazzino.

Mostra tutto

Nelle vicinanze

Trasporto pubblico Trasporto pubblico
San Maurizio Canavese
San Maurizio Canavese
2,6 Km
San Francesco al Campo (v. Roma)
San Francesco al Campo (v. Roma)
450 m
San Francesco al Campo (bv. Sedime)
San Francesco al Campo (bv. Sedime)
860 m
Scuole Scuole
Scuola Primaria "Pagliero"
3,0 Km
Farmacia Farmacia
Farmacia
1,1 Km
Terrone
2,3 Km
Supermercati Supermercati
Crai EXTRA
860 m
Negozi Negozi
Negozi
2,8 Km
Bar Bar
Bar del Moro
2,1 Km
50 Special
2,8 Km
Ristoranti Ristoranti
Londrina
410 m
Aurora
2,2 Km
La Credenza
2,5 Km
Mostra tutto

Caratteristiche

Rif.:
61134821
Piano:
1 di 1 (Piano su più livelli)
Box:
1
Posti auto:
2
Balconi:
3
Camere da letto:
3
Mostra tutto
Prezzo Prezzo
€ 265.000
Rata mutuo Rata mutuo
€ 1.264 / mese
Spese annue Spese annue
€ 150
Proponi il tuo prezzoProponi il tuo prezzo

Classe Energetica

D
D
D
D
D
D
D
D
D
EP globale non rinnovabile:
153.64 kW h/m² anno
EP globale rinnovabile:
0.00 kW h/m² anno
EP invernale del fabbricato:
EP estiva del fabbricato:
Anno di costruzione:
2006
Riscaldamento:
Autonomo
Tipo impianto:
A radiatori
Tipo alimentazione:
Metano

Prezzo ridotto di €1 (2%%)

Ti interessa visionare l'immobile?

Fissa un appuntamento  Fissa un appuntamento

Richiedi informazioni

Clicca su Leggi per aprire l'informativa
* Questi campi sono obbligatori

Calcola il tuo mutuo

Semplice e senza impegno
Anticipo

( % )
Mutuo

( % )

pochi semplici passi

inserisci i tuoi dati
Questionario completato
Grazie per aver richiesto un appuntamento senza impegno con un nostro Consulente del Credito e Assicurativo.

Hai inserito correttamente tutti i dati necessari e a breve riceverai una e-mail con un link da convalidare per inviare i tuoi dati.
Affiliato
Immobiliare San Maurizio Sas
Via Vittorio Emanuele, 42/A 10077 San Maurizio Canavese (TO)

Il nostro staff


  • Ersilio Fascetta
    Affiliato

  • Laura Antonelli
    Responsabile

  • Rossella Valido
    Responsabile

  • Simona Gigliotti
    Collaboratrice

  • Annalisa Aseglio Gianinet
    Collaboratrice

  • Nicolo Antonino Iacono
    Collaboratore

  • Giada De Martino
    Collaboratrice
Via Vittorio Emanuele, 42/A 10077 San Maurizio Canavese (TO)
Zona: San Maurizio Canavese - San Francesco al Campo
Mostra su mappa
Orari: Da Lunedì a Venerdì 09:00 / 12:30 e 14:30 / 20:00 - Sabato 09:00 / 12:30 e 14:30 / 19:30
Affiliato
Immobiliare San Maurizio Sas
Via Vittorio Emanuele, 42/A 10077 San Maurizio Canavese (TO)

2026 Tecnocasa Franchising S.p.A. - P. IVA 08365160152 - Via Monte Bianco 60/A 20089 Rozzano (MI). Ogni agenzia ha un proprio titolare ed è autonoma. Privacy policy | Policy utilizzo | Cookie policy