Quadrilocale in vendita

San Maurizio Canavese, Via Asti
€ 179.000
4 locali 4 locali
108 Mq 108 Mq
1 bagno 1 bagno

Quadrilocale in vendita

San Maurizio Canavese, Via Asti

Descrizione annuncio

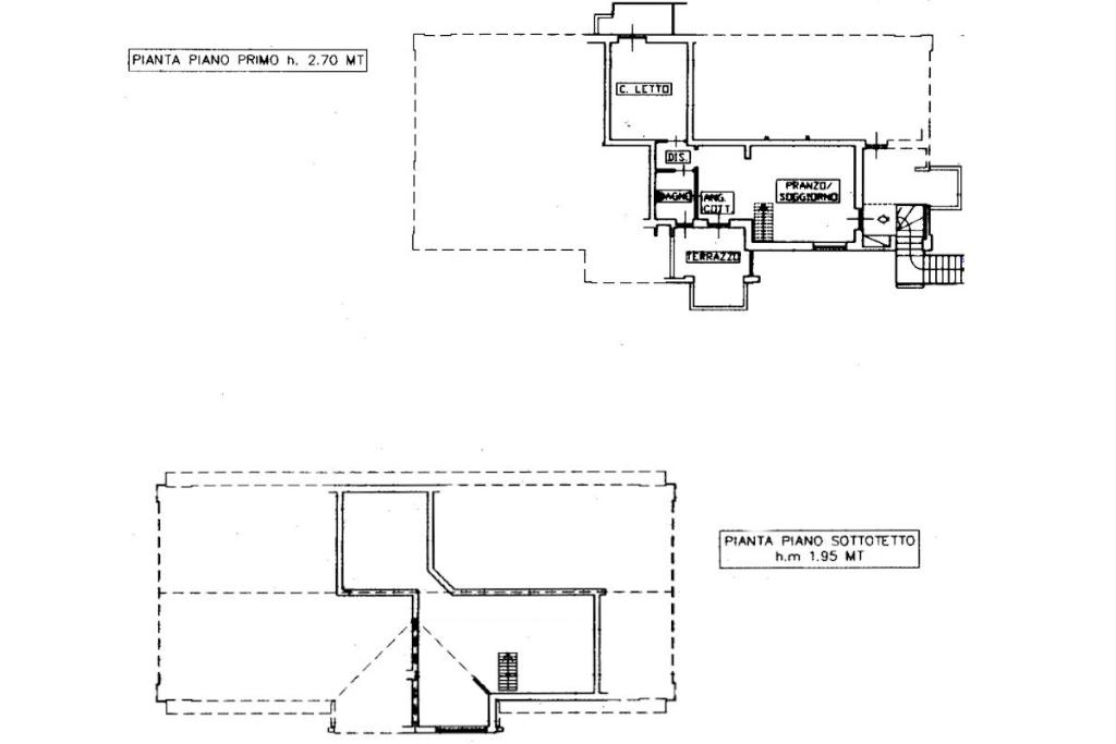
A San Maurizio Canavese, in zona residenziale e a pochi minuti da tutti i principali servizi, appartamento bilivello di recente costruzione del 2002.

L'appartamento è sito al primo piano con ingresso, tramite portoncino blindato, sulla luminosa zona giorno con cucina, comodo terrazzo di circa 10 mq provvisto di tende da sole e tende invernali, camera da letto con balcone e bagno finestrato.

Il piano mansardato completamente rifinito è organizzato come un unico open space, dove è facile ricavare altre due camere da letto matrimoniali. Inoltre, sono già presenti gli impianti per ricavare un secondo bagno.

Completano la proprietà il box auto e la cantina.

L'immobile viene venduto completamente arredato come da foto.

Considerando l'ottima qualità della costruzione, gli infissi in legno con vetrocamera doppia e la caldaia a condensazione installata nel 2024, le spese di gestione risultano molto basse.

Grazie alla sua metratura, la comodità ai servizi, la vicinanza alla stazione e al raccordo autostradale 'Torino - Caselle', la soluzione è ottima per famiglie o per coppie.

Mostra tutto

Nelle vicinanze

Trasporto pubblico Trasporto pubblico
San Maurizio Canavese
San Maurizio Canavese
550 m
Caselle Aeroporto
Caselle Aeroporto
2,3 Km
San Maurizio (Ospedale F. Fratelli)
San Maurizio (Ospedale F. Fratelli)
410 m
San Maurizio
San Maurizio
540 m
Ricariche auto elettriche Ricariche auto elettriche
ADS TotalErg San Maurizio Canavese | Evway
970 m
Scuole Scuole
Scuola Primaria "Pagliero"
270 m
Scuola dell'Infanzia "Albero delle fate"
300 m
Turin Flying Institute S.r.l.
1,8 Km
Lindbergh Academy Turin Airport
2,1 Km
Istituto di Istruzione Superiore Tommaso D'Oria
2,5 Km
Farmacia Farmacia
Terrone
740 m
Farmacia
750 m
Biopharma
2,4 Km
Supermercati Supermercati
Borello
1,3 Km
EuroSpin
2,0 Km
Lidl
2,2 Km
Penny Market
2,4 Km
CRAI
2,4 Km
Negozi Negozi
Pulservice
1,4 Km
Negozi
2,0 Km
Marina Militare
2,4 Km
Robe di Kappa
2,4 Km
K Way
2,4 Km
Bar Bar
Bar del Moro
910 m
50 Special
2,0 Km
Imperiale
2,6 Km
Ristoranti Ristoranti
La Credenza
650 m
Aurora
860 m
Matteo e Mattia
2,0 Km
Bam Bam ristosauro
2,0 Km
Londrina
2,5 Km
Mostra tutto

Caratteristiche

Rif.:
61168449
Piano:
1 di 2 (Piano su più livelli)
Box:
1
Balconi:
1
Terrazzi:
1
Camere da letto:
2
Mostra tutto
Prezzo Prezzo
€ 179.000
Rata mutuo Rata mutuo
€ 836 / mese
Spese annue Spese annue
€ 500
Proponi il tuo prezzoProponi il tuo prezzo

Classe Energetica

Questo immobile è esente da classe energetica
Anno di costruzione:
2002
Riscaldamento:
Autonomo
Tipo impianto:
A radiatori
Tipo alimentazione:
Metano

Ti interessa visionare l'immobile?

Fissa un appuntamento  Fissa un appuntamento

Richiedi informazioni

Clicca su Leggi per aprire l'informativa
* Questi campi sono obbligatori

Calcola il tuo mutuo

Semplice e senza impegno
Anticipo

( % )
Mutuo

( % )

pochi semplici passi

inserisci i tuoi dati
Questionario completato
Grazie per aver richiesto un appuntamento senza impegno con un nostro Consulente del Credito e Assicurativo.

Hai inserito correttamente tutti i dati necessari e a breve riceverai una e-mail con un link da convalidare per inviare i tuoi dati.
Affiliato
Immobiliare San Maurizio Sas
Via Vittorio Emanuele, 42/A 10077 San Maurizio Canavese (TO)

Il nostro staff


  • Ersilio Fascetta
    Affiliato

  • Laura Antonelli
    Responsabile

  • Rossella Valido
    Responsabile

  • Simona Gigliotti
    Collaboratrice

  • Annalisa Aseglio Gianinet
    Coordinatrice

  • Nicolo Antonino Iacono
    Collaboratore

  • Giada De Martino
    Collaboratrice
Via Vittorio Emanuele, 42/A 10077 San Maurizio Canavese (TO)
Zona: San Maurizio Canavese - San Francesco al Campo
Mostra su mappa
Orari: Da Lunedì a Venerdì 09:00 / 12:30 e 14:30 / 20:00 - Sabato 09:00 / 12:30 e 14:30 / 19:30
Affiliato
Immobiliare San Maurizio Sas
Via Vittorio Emanuele, 42/A 10077 San Maurizio Canavese (TO)

2026 Tecnocasa Franchising S.p.A. - P. IVA 08365160152 - Via Monte Bianco 60/A 20089 Rozzano (MI). Ogni agenzia ha un proprio titolare ed è autonoma. Privacy policy | Policy utilizzo | Cookie policy