Villa a schiera d'angolo in vendita

San Maurizio Canavese, Via Santa Lucia - Malanghero
€ 279.000
5 locali 5 locali
200 Mq 200 Mq
2 bagni 2 bagni

Villa a schiera d'angolo in vendita

San Maurizio Canavese, Via Santa Lucia - Malanghero

Descrizione annuncio

In frazione Malanghero, nella zona residenziale di via Santa Lucia, villa a schiera situata in complesso residenziale del 2010 in paramano esterno.

L'immobile si presenta in ottime condizioni interne.

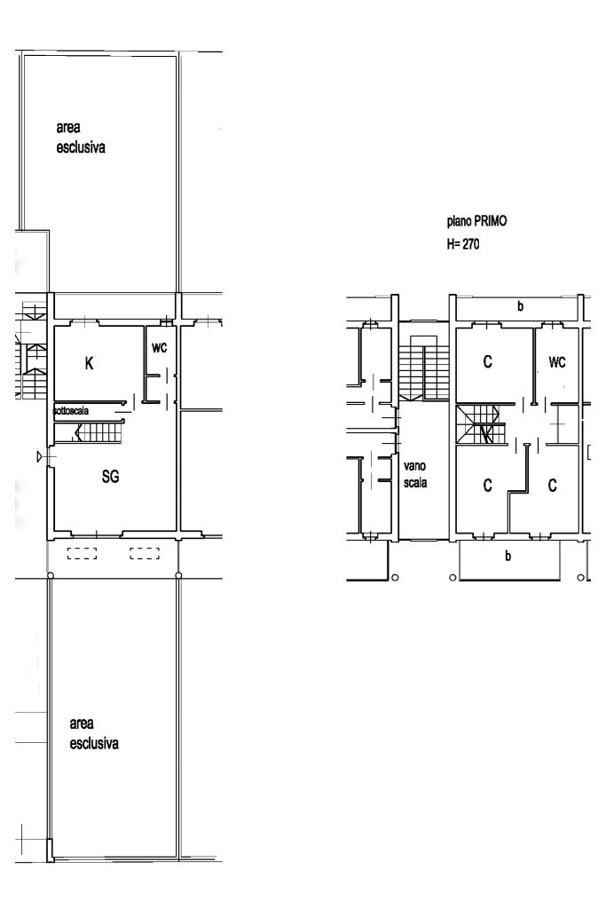
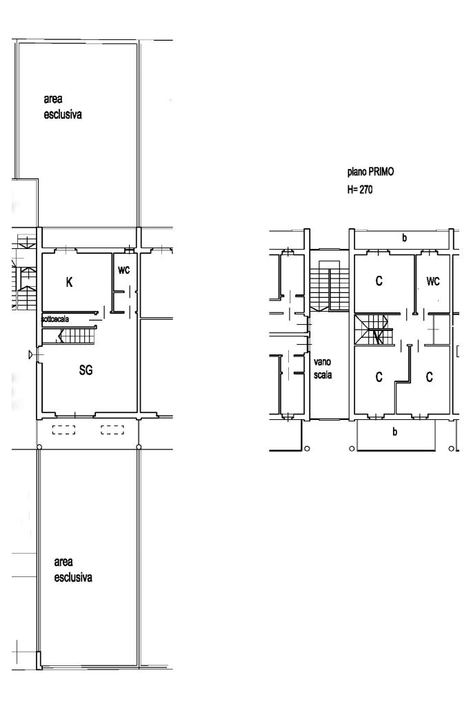
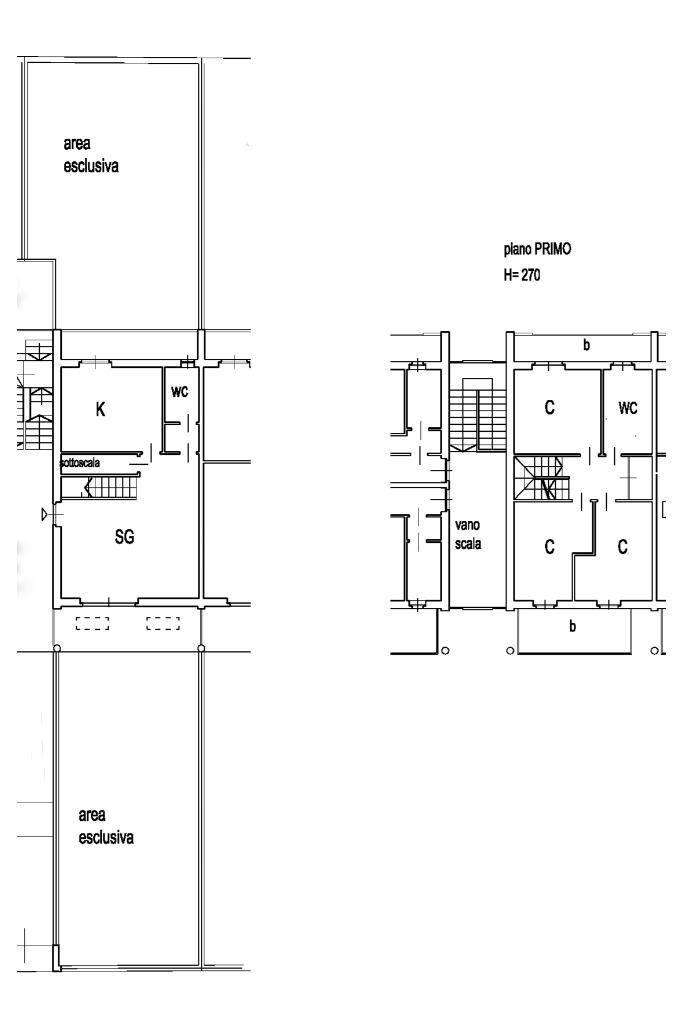
Tramite il portoncino blindato, si accede all'ampia zona giorno living con accesso al comodo giardino frontale, alla cucina abitabile, anch'essa di generose dimensioni e con uscita sul giardino del retro. Sullo stesso piano, il bagno finestrato con docci.

Al piano primo, disimpegno che divide gli ambienti, due camere matrimoniali, di cui una con terrazzo, e una camera singola utilizzata attualmente come cabina armadio, il bagno, anch'esso finestrato, con vasca.

Il secondo piano, mansardato, attualmente è un grande open space completamente rifinito, ma con possibilità di essere diviso per ricavare due ampie camere da letto. Sul piano, è presente la pompa di calore caldo/freddo.

Completano la proprietà la cantina e i due box di 20 mq.

La soluzione, considerata l'ampia metratura, il doppio giardino e la zona tranquilla, si presenta come un'ottima soluzione per le famiglie che desiderano una casa immersa nel verde.
Inoltre, vista la classe energetica 'A' e le ottime caratteristiche tecniche della costruzione, le spese di mantenimento dell'immobile risultano sostenibili.

Mostra tutto

Nelle vicinanze

Trasporto pubblico Trasporto pubblico
Caselle Aeroporto
Caselle Aeroporto
1,7 Km
San Maurizio Canavese
San Maurizio Canavese
2,8 Km
Malanghero
Malanghero
360 m
Malanghero (bv. San Maurizio)
Malanghero (bv. San Maurizio)
1,1 Km
Ricariche auto elettriche Ricariche auto elettriche
ADS TotalErg San Maurizio Canavese | Evway
1,8 Km
Scuole Scuole
Lindbergh Academy Turin Airport
1,4 Km
Turin Flying Institute S.r.l.
1,5 Km
Scuola dell'Infanzia "Albero delle fate"
2,7 Km
Scuola Primaria "Pagliero"
2,7 Km
Scuola primaria Collodi
2,9 Km
Farmacia Farmacia
Biopharma
1,6 Km
Farmacia
2,6 Km
Terrone
2,8 Km
Bertolone
2,9 Km
Supermercati Supermercati
CRAI
1,6 Km
EuroSpin
2,7 Km
Negozi Negozi
Negozi
330 m
Robe di Kappa
1,5 Km
K Way
1,5 Km
Marina Militare
1,6 Km
Blanco
1,6 Km
Bar Bar
50 Special
390 m
Bar del Moro
2,8 Km
Bar
3,0 Km
Ristoranti Ristoranti
antica zecca
2,2 Km
Wok Lin
2,6 Km
Londrina
2,6 Km
Bam Bam ristosauro
2,7 Km
Aurora
2,8 Km
Mostra tutto

Caratteristiche

Rif.:
61112199
Piano:
1 di 2 (Piano su più livelli)
Box:
2
Terrazzi:
1
Camere da letto:
4
Arredamento:
Assente
Mostra tutto
Prezzo Prezzo
€ 279.000
Rata mutuo Rata mutuo
€ 1.317 / mese
Spese annue Spese annue
€ 1.000
Proponi il tuo prezzoProponi il tuo prezzo

Classe Energetica

A1
A1
A1
A1
A1
A1
A1
A1
A1
EP globale non rinnovabile:
50.10 kW h/m² anno
EP globale rinnovabile:
19.60 kW h/m² anno
EP invernale del fabbricato:
EP estiva del fabbricato:
Anno di costruzione:
2017
Riscaldamento:
Centralizzato
Tipo impianto:
A radiatori
Tipo alimentazione:
Metano

Ti interessa visionare l'immobile?

Fissa un appuntamento  Fissa un appuntamento

Richiedi informazioni

Clicca su Leggi per aprire l'informativa
* Questi campi sono obbligatori

Calcola il tuo mutuo

Semplice e senza impegno
Anticipo

( % )
Mutuo

( % )

pochi semplici passi

inserisci i tuoi dati
Questionario completato
Grazie per aver richiesto un appuntamento senza impegno con un nostro Consulente del Credito e Assicurativo.

Hai inserito correttamente tutti i dati necessari e a breve riceverai una e-mail con un link da convalidare per inviare i tuoi dati.
Affiliato
Immobiliare San Maurizio Sas
Via Vittorio Emanuele, 42/A 10077 San Maurizio Canavese (TO)

Il nostro staff


  • Ersilio Fascetta
    Affiliato

  • Laura Antonelli
    Collaboratrice

  • Rossella Valido
    Responsabile

  • Simona Gigliotti
    Collaboratrice

  • Annalisa Aseglio Gianinet
    Coordinatrice

  • Nicolo Antonino Iacono
    Collaboratore

  • Giada De Martino
    Collaboratrice
Via Vittorio Emanuele, 42/A 10077 San Maurizio Canavese (TO)
Zona: San Maurizio Canavese - San Francesco al Campo
Mostra su mappa
Orari: Da Lunedì a Venerdì 09:00 / 12:30 e 14:30 / 20:00 - Sabato 09:00 / 12:30 e 14:30 / 19:30
Affiliato
Immobiliare San Maurizio Sas
Via Vittorio Emanuele, 42/A 10077 San Maurizio Canavese (TO)

2025 Tecnocasa Franchising S.p.A. - P. IVA 08365160152 - Via Monte Bianco 60/A 20089 Rozzano (MI). Ogni agenzia ha un proprio titolare ed è autonoma. Privacy policy | Policy utilizzo | Cookie policy